End-terraced home for sale
Station Road, Ratby, Leicester, Leicestershire
Offers Over
£310,000





+18 more
Offers Over
£310,000
Status
For Sale
Bedrooms
4
Bathrooms
2
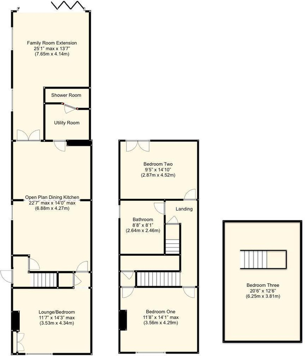
Description
SIMPLY STUNNING – It’s hard to find a property quite like this beautifully renovated and extended four/three-bedroom end-terrace family home. Located in the heart of Ratby on Station Road, this exceptional home spans three floors and features a dream extension at the rear. With parking for one car, this property is sure to check all the boxes.
Step inside and be amazed by the spaciousness of this beautifully extended traditional three/four-bedroom end-terrace, situated in the desirable village of Ratby, just a short walk from local amenities. Originally built in 1880, Gladstone Villa boasts a host of modern updates while maintaining its classic charm. The property includes a generous dining kitchen, lounge (currently used as a fourth double bedroom), utility room, a downstairs shower room, and a stunning family room extension with bi-folding doors and a lantern roof. Upstairs, you'll find two double bedrooms and a contemporary re-fitted bathroom (2021).
Floorplans


